$4,487,000
About this Industrial
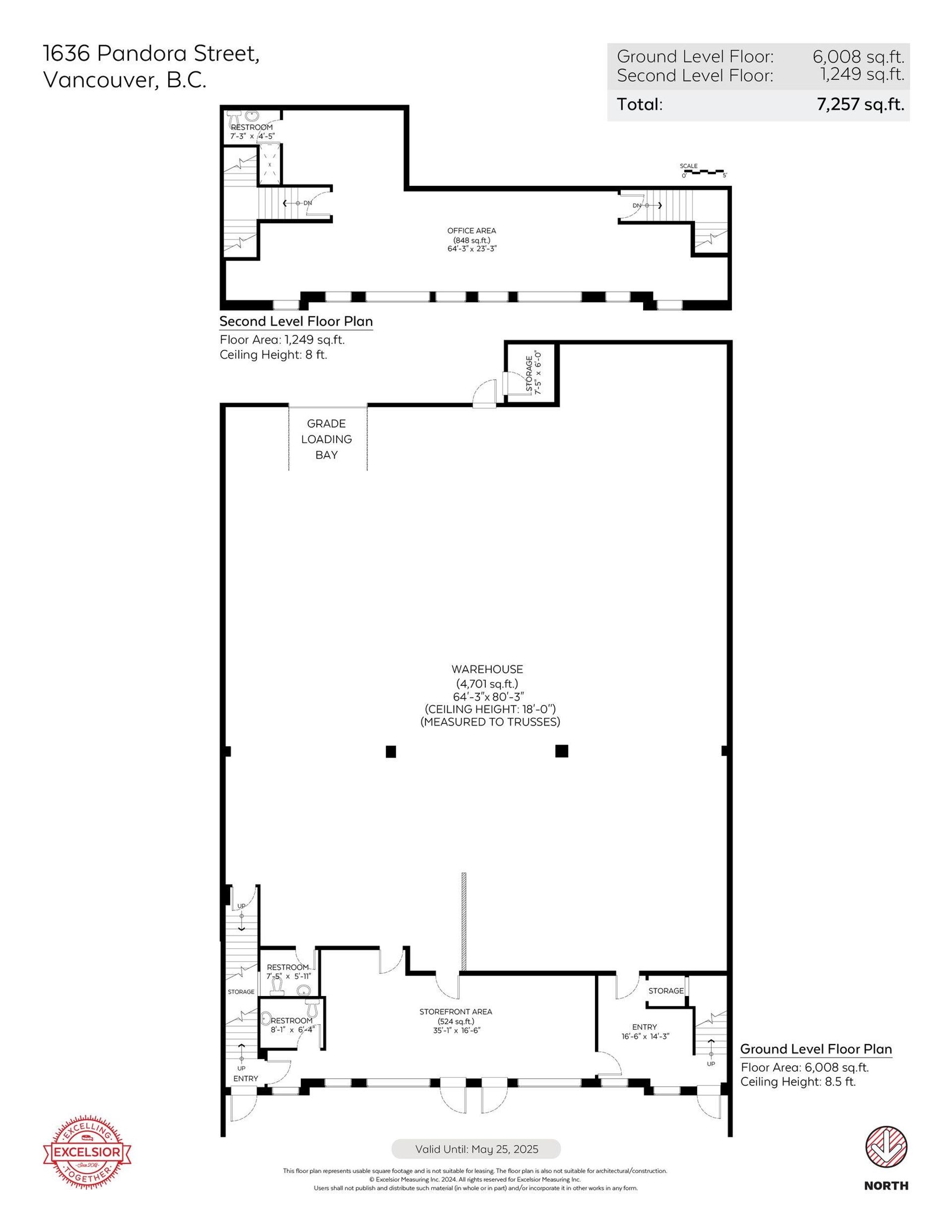
Modern & recent $350k renovation incl. new: windows, paint & carpets. Warehouse completely pressure washed, floor grinded & re-leveled w/ fresh concrete. Then passed COV safety inspections & issued new occupancy cert. 18 ft. ceiling. 7,257 SF of leaseable area. Recently vacant w/ mkt rents of $24 per SF Net = 3.9% cap rate. Adjacent bldgs same owner 1642 & 1670 Pandora also on MLS. Heavy Industrial redevelopment site. Site is 8,052 SQFT of land & 66 FT of frontage along Pandora St. First time to sales market since built in 1991. Present M2 zoning allows Floor Space Ratio to 5.0 times the site size (40,260 buildable SQFT) for allowed uses of manufacturing, wholesaling, transportation & storage. Site is directly across the 4 storey PS Public Storage (74k SF floor area) & directly behind the newer 7 storey SmartStop Storage (90k SF). 2021 Phases 1 & 2 Environmental Analysis done. Jul 2024 BC Property Tax Assessment: Land $4.323M + Bldg $10,200. Starting price $111 per Buildable SQFT or $557 per SQFT of land.
Listed by Amex Broadway West Realty.
Browse PhotosFeatures
- Type: Industrial
- Size: 7,257 sqft
- Sub Type: Industrial
- $/SQFT: $618.30
- Year Built: 1991
- Taxes: $44430
- Parking: Guest (6)
- Zoning: M-2
 
            Contact Brian to inquire about this Industrial!
778.829.1105
Photos
                 Brought to you by your friendly REALTORS® through the MLS® System,
                courtesy of BrixWork for Realtors for your convenience.
                Brought to you by your friendly REALTORS® through the MLS® System,
                courtesy of BrixWork for Realtors for your convenience.
Disclaimer: This
                representation is based in whole or in part on data generated by the Chilliwack
                & District Real Estate Board, Fraser Valley Real Estate Board or Real Estate
                Board of Greater Vancouver which assumes no responsibility for its accuracy.
            
 
						 
						